Ref
Busco
Tipo
En
Zona
Habitaciones
Baños
Características
Precio

Local comercial en alquiler en C/Balmes - Barcelona (ref.10448)

Local Comercial en alquiler en Barcelona (Eixample)

11.000 €/mes
ref. 10448
220 m2 construidos
220 m2 útiles
 

Calificación Energética En trámite

Local comercial en ubicación excepcional en calle Balmes, junto a la comercial calle Pelai, uno de los ejes prime del centro de Barcelona. A escasos metros de Plaça Catalunya y Ronda Universitat, en una zona de altísimo tránsito peatonal y excelente visibilidad.

El entorno combina una elevada densidad comercial con la presencia de firmas internacionales, hoteles, oficinas y restauración de calidad, generando un flujo constante de público local y turístico. Perfectamente conectado mediante metro, tren y múltiples líneas de autobús.

El local dispone de licencia vigente para supermercado (epígrafes A1.1, A1.2, A5.2 y A5.3), lo que lo convierte en una oportunidad ideal para operadores del sector de la alimentación premium o marcas consolidadas que prioricen la calidad, la imagen de marca y la ubicación estratégica.

Se han realizado las adecuaciones pertinentes requeridas por parte del Ayuntamiento.


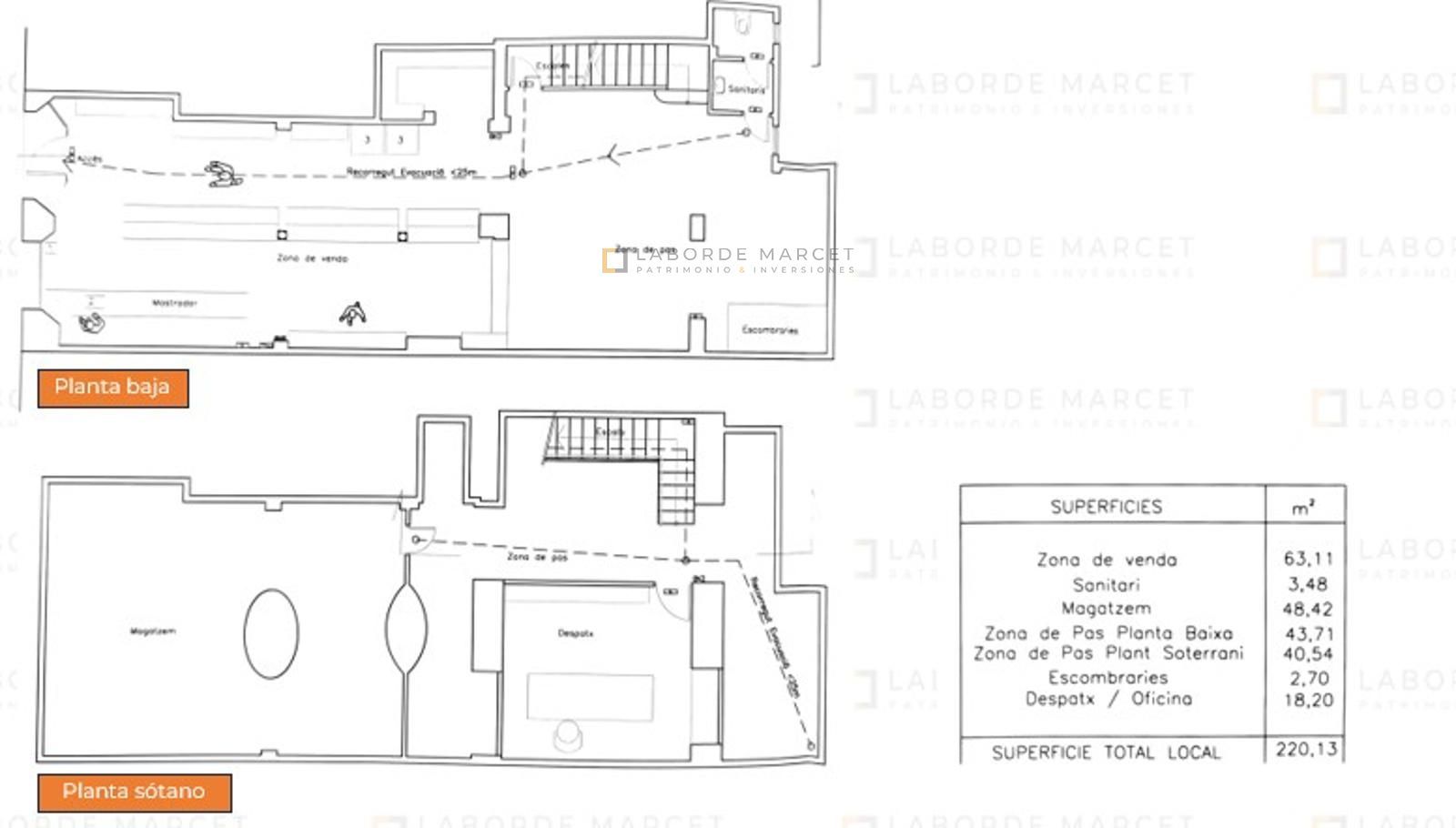
DEGLOSE DE SUPERFICIE

Planta Baja: 113 m²

Planta Sótano: 107,16 m²


COMERCIOS DE ZONA

• Miin Korean Cosmetics

• Macchina Pasta

• Syra Coffee


CONDICIONES

• Gastos de comunidad: 1.217€

• IBI anual: 11.166€


_________

Laborde Marcet, empresa de patrimonio e inversión centra su actividad en el asesoramiento personalizado y profesional de cada cliente, disponiendo para ello de un equipo integrado por abogados, economistas, arquitectos y otros perfiles para ofrecer un servicio de asesoramiento completo.

Estamos a su disposición para ampliarle información y/o visitar el inmueble. Disponemos de más locales comerciales en Barcelona.

Si desea más información sobre esta propiedad, por favor, rellene el cuestionario: