Ref
Busco
Tipo
En
Zona
Habitaciones
Baños
Características
Precio

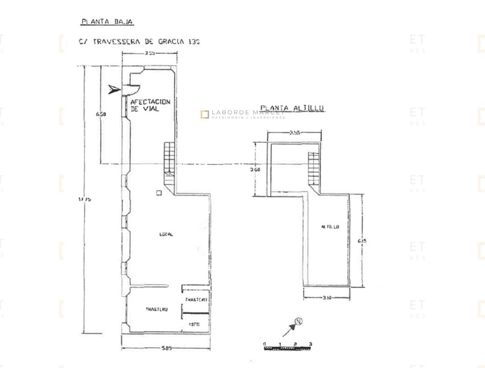
Local esquinero en alquiler en Travessera de Gracia - Barcelona (ref.11081)

Local Comercial en alquiler en Barcelona (Gràcia)

1.950 €/mes
ref. 11081
135 m2 construidos
135 m2 útiles
 

Calificación Energética En trámite

Local comercial esquinero en alquiler en Travessera de Gràcia, a pocos metros de la calle Gran de Gràcia.

Zona rodeada de todo tipo de comercios, restaurantes, alojamientos hoteleros y bien comunicado con el transporte público.


ARRENDATARIO ACTUAL

Libre


DISPONIBILIDAD

Inmediata


DESGLOSE DE SUPERFÍCIE

Planta baja: 90m2

Altillo: 45m2


COMERCIOS DE ZONA

Decahtlon

Zara Kids

Zapatería Tascón


CONDICIONES

Contrato: a determinar

Garantías: 2 meses de fianza legal más garantía adicional a negociar

Gastos de comunidad e Ibi: a determinar


HONORARIOS LABORDE MARCET

15% de una anualidad de la renta a cargo del arrendatario (+IVA).

 ___

Laborde Marcet, empresa de patrimonio e inversión centra su actividad en el asesoramiento personalizado y profesional de cada cliente, disponiendo para ello de un equipo integrado por abogados, economistas, arquitectos y otros perfiles para ofrecer un servicio de asesoramiento completo.

Estamos a su disposición para ampliarle información y/o visitar el inmueble. Disponemos de más locales comerciales en Barcelona.


Si desea más información sobre esta propiedad, por favor, rellene el cuestionario: