Ref
Busco
Tipo
En
Zona
Habitaciones
Baños
Características
Precio

Local en alquiler en C/ Ausias March - Barcelona (ref.11063)

Local Comercial en alquiler en Barcelona (Eixample)

16.000 €/mes
ref. 11063
1.644 m2 construidos
1.644 m2 útiles
 

Calificación Energética En trámite

Local comercial en alquiler en calle Ausiàs March, cerca de Gran Via de les Corts Catalanes y Pl. Tetuán.

Zona rodeada de todo tipo de comercios, restaurantes, alojamientos hoteleros y bien comunicado con el transporte público.

Ideal para un gimnasio, coworking, gimnasio-spa o supermercado


ARRENDATARIO ACTUAL

Libre


DISPONIBILIDAD

Inmediata


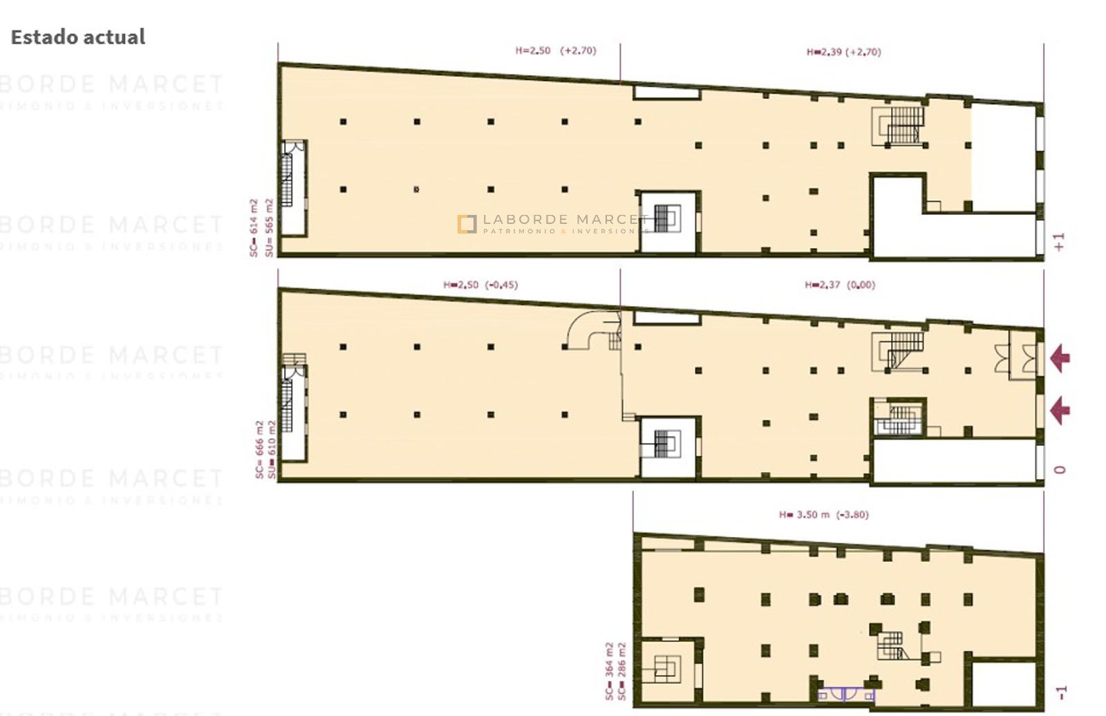
DESGLOSE SUPERFICIES

Planta Baja: 610m²

Planta Sótano: 286m²

Altillo: 565m²

Altillo sin parte delantera: 371m²


COMERCIO ZONA

Grosso Napoletano

Asepeyo

Norma Comics


CONDICIONES

Contrato: a determinar

Garantías: 2 meses de fianza legal más garantía adicional a negociar

Gastos de comunidad e Ibi: a determinar


HONORARIOS LABORDE MARCET

15% de una anualidad de la renta a cargo del arrendatario (+IVA).


Si desea más información sobre esta propiedad, por favor, rellene el cuestionario: