Ref
Busco
Tipo
En
Zona
Habitaciones
Baños
Características
Precio

Local comercial en traspaso en C/Avinyó - Barcelona (ref.10757)

Local Comercial en traspaso en Barcelona (Ciutat Vella)

traspaso:
260.000 €
2.700 €/mes
ref. 10757
270 m2 construidos
270 m2 útiles
 

Calificación Energética En trámite

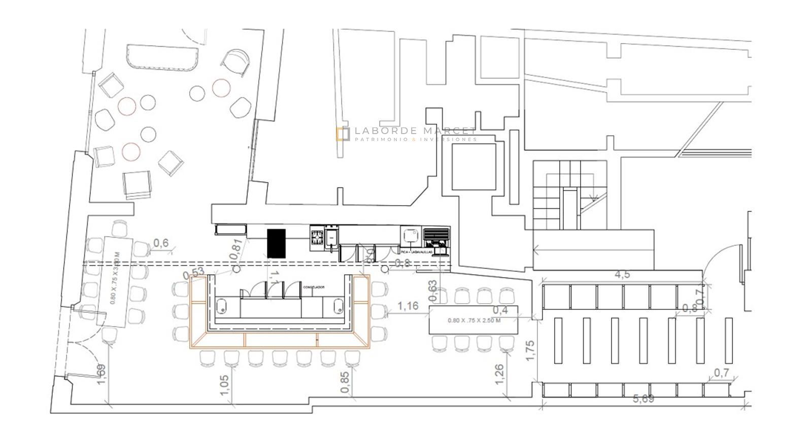
Local en traspaso en el corazón del Born. Cerca de carrer Escudellers y Avinyó. Zona turística y muy comercial. Rodeada de una gran oferta de restauración, servicios y alojamientos hoteleros.

Tiene doble entrada, una por calle Avinyó 44 y otra por calle Carabassa 7.

Tiene licencia C3 con salida de humos.


DESGLOSE DE SUPERFICIE

Planta baja: 270 m²


DISPONIBILIDAD

Inmediata


COMERCIO DE ZONA

Tapas Avinyó

La Pachuca

Ferreteria Óptimus


CONDICIONES

Contrato: 10 años.

Garantías: 2 meses de fianza legal más garantía adicional a negociar

Gastos de comunidad e Ibi: a determinar.


HONORARIOS LABORDE MARCET

15% de una anualidad de la renta más el 7,5% del precio final del traspaso a cargo del arrendatario (+IVA).


_________

Laborde Marcet, empresa de patrimonio e inversión centra su actividad en el asesoramiento personalizado y profesional de cada cliente, disponiendo para ello de un equipo integrado por abogados, economistas, arquitectos y otros perfiles para ofrecer un servicio de asesoramiento completo.

Estamos a su disposición para ampliarle información y/o visitar el inmueble. Disponemos de más locales comerciales en Barcelona.


Si desea más información sobre esta propiedad, por favor, rellene el cuestionario: