Ref
Busco
Tipo
En
Zona
Habitaciones
Baños
Características
Precio

Local comercial en venta en C/Casp - Barcelona (ref.11265)

Local Comercial en venta en Barcelona (Eixample)

5.400.000 €
ref. 11265
1.020 m2 construidos
1.020 m2 útiles
 

Calificación Energética En trámite

En calle Casp, al lado del hotel 5* ME Barcelona y delante del Teatre Tívoli. Junto a Passeig de Gràcia y Plaça Catalunya.

Local comercial en venta en una zona muy turística, de mucho tránsito peatonal.

IPU Favorable para Restaurante Bar. Salida de humos autorizada por los estatutos de comunidad.


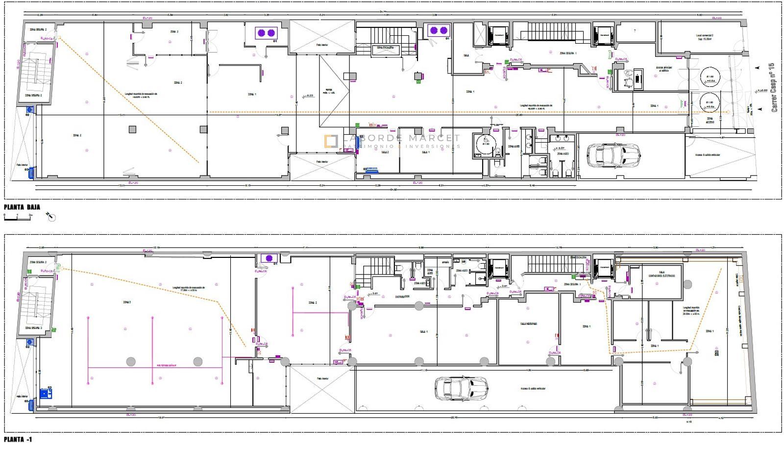
DESGLOSE DE SUPERFICIE

Planta baja útil: 455,35 m²

Planta -1 útil: 501,25 m²

Superficie total: 1.020 m²

Fachada esquinera: 5 metros + 3 metros

Altura libre: 2,35m – 3,15m


CONDICIONES

Gastos de comunidad: 4.036€/trimestral

IBI: 4.782€/trimestral


_________

Laborde Marcet, empresa de patrimonio e inversión centra su actividad en el asesoramiento personalizado y profesional de cada cliente, disponiendo para ello de un equipo integrado por abogados, economistas, arquitectos y otros perfiles para ofrecer un servicio de asesoramiento completo.

Estamos a su disposición para ampliarle información y/o visitar el inmueble. Disponemos de más locales comerciales en Barcelona.


Si desea más información sobre esta propiedad, por favor, rellene el cuestionario: