Ref.
Procuro
Tipo
Em
Zona
Quartos
Quartos de banho
Características
Preço

Local Comercial à venda en Barcelona (Eixample) (ref.10026)

2.500.000 €
anteriormente: 2.600.000 €
ref. 10026
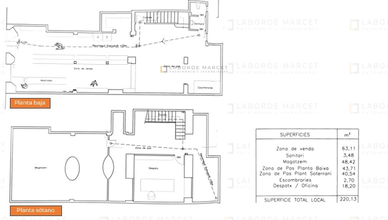
220 m2 construídos
220 m2 úteis
 

Qualificação da energía Em trâmite
Local Comercial à venda en Barcelona e com 292 m2.

Para obter mais informações sobre esta propriedade, preencha o questionário:

Visítanos en


LABORDE MARCET
Plaça Catalunya nº 8 Principal
08007 – Barcelona

933 183 663 -